在净化车间设计中,每一个设备都考虑一定地位,包括设备本身所占地位,操作地位,设备地位,设备检修拆装地位以及设备与设备、设备与建筑物的安全距离。设备布置应考虑为操作工人管理多台设备或多种设备创造条件,不宜过紧或过松,应尽量对称紧凑,排列整齐,充分利用空间。设备的自动监测仪表要集中控制,阀门控制尽量集中,便于工人操作。设备能顺利进出车间的要求,通过楼层的设备,楼面上要设置吊装孔。
考虑净化车间设备的检修和拆卸以及运送物料所需的起重运输设备;凡笨重设备或运转时会产生剧烈振动的设备,应尽可能布置在厂房的底层,以减少厂房楼面的负荷。且剧烈振动的设备,其造作台基础不得与建筑物的柱、墙连在一起,以免影响建筑物的安全。设备布置要避开建筑物的柱子和主梁。厂房内所有操作台必须统一考虑,避免平台支柱零乱重复,影响车间美观、生产操作及检修。

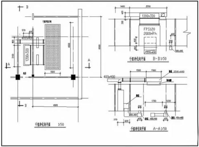
1.净化车间布置平面图
该车间生产类别为丙类,耐火等级为二级构形式为单层框架,层高为5m;洁净控制区设吊顶;吊顶高度为2.70m;一步制粒间局部抬高至3.5m。车间内的人员和物料通过各自的专用通道进入洁净区,人流和物流无交叉。整个车间主要出入口分三处,一处是人流出人口,即人员由门厅经过更衣进入车间,再经过洗手、更洁净衣进入洁净生产区、手消毒;一处是原辅料人口,即原辅料经过脱外包由传递窗送入;另一处为成品出口。
车间内部布置主要有湿法制粒、干燥、整粒、总混、灌装、抛光、铝塑内包、外包等工序。
2.车间排热、排湿及臭未处理
配浆、容器具清洗等散热、散湿量大的岗位,除设计排湿装置外,同时设置前室,以避免由于散湿和散热量大而影响相邻洁净室的操作和环境空调参数。烘房是产湿、产热较大的工序,如果将烘房排气先排至操作室内再排至室外,则会影响工作室的温湿度。将烘房室排风系统与烘箱排气系统相连,并设置三通管道阀门,阀门的开关与烘箱的排湿连锁,即排湿阀开时,排风口关。此时烘房的湿热排风不会影响烘房工作室的温度和气流组织。铝塑包装机工作时产生PVC焦臭味,故设置排风,排风口位于铝塑包装热合位置的上方。

3.净化车间产尘的处理
发尘量大的粉碎、过筛、制粒、干燥、整粒、总混、充填等岗位,需设计必要的捕尘、除尘装置。
产尘室内同时设置回风及排风,排风系统均与相应的送风系统连锁,即排风系统只有在迭风系统运行后才能开启,避免不正确的操作,以保证洁净区相对室外正压。工序产尘时开除尘器,关闭回风;不产尘时开回风,关闭排风。
4.参观净化车间走廊的设置
参观走廊的主要功能是人物流通道,同时也是保证消防安全通道畅通;使洁净区与外界有一定的缓冲,保证了生产区域的洁净;作为参观走廊,应使参观者不会影响到生产。而且洁净走廊的设置,使用暖气采暖成为可能,保护了洁净区,避免冬季内墙结露。因为洁净区靠外墙,如果不设窗,影响房间采光;若设双层窗,无论如何密闭,灰尘也要进来,窗户的清洗也成问题。因此,参观走廊的设置就显得比较重要了。
建筑物内表面即使不受碰撞也会发灰,因此要控制室内洁净度,也应考虑室内饰面材料发尘量的因素:走廊的地面选用水磨石等整体性好的材料,制作时加厚回填土,提高水泥标号,必要时还可配置钢筋,增设防水层等以防地面开裂、返潮。墙面,天棚饰面可选用乳胶漆(苯丙涂料)。
除选用发尘量小的装饰材料外,同时还要减少建筑物内表面易于积尘的部位,便于清洁也是重要的净化措施。在走廊设计中,窗户不设窗台,窗柜与墙面齐平,易积灰尘平台设15度得斜度以免灰尘积聚。墙面上墙根、路脚线等不要凸出。墙、顶、地交接处宜有一定弧度(半经为20—50mm)。
